Palm Beach Accommodations | Rooms | The Brazilian Court Hotel Skip to main content
A King bed in ADA Compliant Room at Brazilian Court
Escape From it All

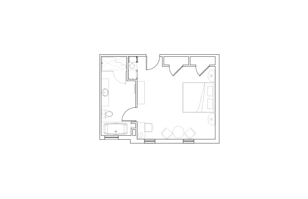
ADA Compliant Rooms

ADA Compliant rooms feature one king bed, and full wheelchair accessibility in both the guestroom and bathroom.

For rates and availability, contact: 800.552.0335

A King bed in ADA Compliant Room at Brazilian Court
Interior of ADA Compliant Room bathroom at Brazilian Court

Featuring bathrooms with roll-in showers, grab bars, raised toilet frame, shower seat, telephone compatability with an impaired aid, closed caption TV decoders, audible fire alarms with visual alarm strobe lights, door bell, alarm clock and braile system.

Category Guestrooms
Floor Plan View Floor Plan

Amenities

The following amenities are included with the room:
  • Complimentary high speed wireless internet
  • Marble baths with jetted tubs and walk-in showers
  • Twice daily maid service, including evening turn down
  • Same day laundry, garment pressing & dry cleaning service
  • In-room dining by Café Boulud
  • Mini Refrigerator & Wine Captain
  • Minibar
  • Pillowtop beds
  • Plush bedding
  • Plush bathrobes and slippers
  • Flat-screen HD TV with DVD Player
  • Hairdryer
  • Make-Up Mirror
  • Central Air Conditioning
  • Safe
  • Complimentary newspaper
A couple having breakfast on bed at Brazilian Court

Make yourself at home